Unit 20 - 145 Traders Boulevard E Mississauga, Ontario L4Z 3L3
1,838 sqft
Fully Air Conditioned
Forced Air
$3,000 Monthly
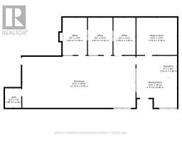
Prime opportunity to lease nearly 2,000 sq. ft. of professional office space in a well-managed Mississauga building. Layout includes a spacious open-concept work area, three private offices/meeting rooms, one large boardroom, and a shared reception. Ideal for finance, legal, consulting, tech, or other professional uses. (id:47351)
Property Details
| MLS® Number | W12763700 |
| Property Type | Office |
| Community Name | Gateway |
Building
| Cooling Type | Fully Air Conditioned |
| Heating Fuel | Natural Gas |
| Heating Type | Forced Air |
| Size Exterior | 1838 Sqft |
| Size Interior | 1,838 Sqft |
| Type | Offices |
| Utility Water | Municipal Water |
Land
| Acreage | No |
| Zoning Description | M1-1030 |























