G-725 Dearborn Private Ottawa, Ontario K1T 0W4

2 Bedroom 2 Bathroom 1,200 - 1,399 sqft
Central Air Conditioning Forced Air

$475,000

Maintenance, Water

$375 Monthly

2-bedroom, 2-bath penthouse condo offers over $50K in premium upgrades and a bright, modern living experience. Featuring 9 ft ceilings, 5.5 ft tall east-facing windows, and premium 5" engineered oak hardwood floors, the home is filled with natural light and high-end finishes. The upgraded kitchen includes quartz countertops, an extended island with breakfast bar, designer wall tiles, under-cabinet lighting, and an open hood fan. Both bedrooms feature plush dense broadloom with thick under padding, and the primary ensuite showcases oversized tiles and sleek modern fixtures. Additional highlights include extra dimmable pot lights, a larger-than-standard staircase, a spacious 6' x 15' balcony, and ample storage including a large linen closet and dedicated mechanical/storage room. With no neighbors above, this penthouse combines privacy, style, and comfort in an exceptional open-concept layout. (id:47351)

Open House

This property has open houses!

April
18
Saturday
Starts at:

3:00 pm

Ends at:

5:00 pm

Property Details

MLS® Number X12969982
Property Type Single Family
Community Name 2605 - Blossom Park/Kemp Park/Findlay Creek
Community Features Pets Allowed With Restrictions
Equipment Type Water Heater
Features Balcony
Parking Space Total 1
Rental Equipment Type Water Heater

Building

Bathroom Total 2
Bedrooms Above Ground 2
Bedrooms Total 2
Age 0 To 5 Years
Appliances Dryer, Microwave, Washer
Basement Type None
Cooling Type Central Air Conditioning
Exterior Finish Brick Veneer, Steel
Flooring Type Hardwood, Ceramic, Carpeted
Heating Fuel Natural Gas
Heating Type Forced Air
Stories Total 2
Size Interior 1,200 - 1,399 Sqft
Type Apartment

Parking

No Garage

Land

Acreage No

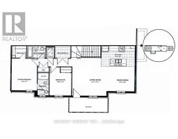
Rooms

Level Type Dimensions
Main Level Living Room 4.6 m x 4.85 m
Main Level Dining Room 3.65 m x 3.2 m
Main Level Kitchen 5 m x 2.6 m
Main Level Primary Bedroom 3.4 m x 4.15 m
Main Level Bathroom 3 m x 1.5 m
Main Level Other 1.8 m x 1.5 m
Main Level Bedroom 2 3.6 m x 3 m
Main Level Bathroom 2.7 m x 1.5 m

https://www.realtor.ca/real-estate/29571898/g-725-dearborn-private-ottawa-2605-blossom-parkkemp-parkfindlay-creek