2 Bedroom
3 Bathroom
1,200 - 1,399 sqft
Bungalow
Fireplace
Central Air Conditioning, Air Exchanger
Forced Air, Heat Pump, Not Known
Waterfront On Lake
$1,325,000Maintenance, Common Area Maintenance, Parking
$700 Monthly
Overlooking the iconic 18th green on Bigwin Island, with spectacular views of Lake of Bays, this rare offering features one of only three award-winning, fully furnished, two-bedroom Club Cabins designed by MacKay-Lyons Sweetapple Architects. Move-in ready for the upcoming season, it also provides the opportunity to obtain membership in the sold-out Bigwin Island Golf Club, giving access to an exclusive 18-hole championship course, practice facilities, clubhouse dining, and member services.Thoughtfully planned with sustainability, natural materials, and low-maintenance living in mind, the cabin offers an open-concept great room, well-appointed kitchen, two bedrooms, and seamless indoor-outdoor spaces oriented to golf and lake views. The property forms part of an intimate nine-unit vacant land condominium with its own private waterfront, one exclusive-use dock slip, and shared conveniences that simplify ownership and enhance lock-and-leave use.Within walking distance of the main clubhouse, driving range, short-game area, tennis facilities, and over 7 km of interior walking and jogging paths, this is a complete lifestyle package on a 520-acre private island with over 26,000 ft of shoreline on Lake of Bays. Ideal for downsizing while remaining on the lake, or as premium guest and recreational space to complement an existing family cottage, this Club Cabin delivers a turnkey way to experience Bigwin Island's architecture, history, and world-class recreation. Price includes the cost of the golf membership, which is valued at $175K and price is exclusive of HST. Membership purchase is subject to the Clubs nomination and Board Approval process. Act now...this will not last long. (id:47351)
Property Details
|
MLS® Number
|
X12914830 |
|
Property Type
|
Single Family |
|
Community Name
|
Franklin |
|
Amenities Near By
|
Golf Nearby |
|
Community Features
|
Pets Allowed With Restrictions |
|
Easement
|
Sub Division Covenants, Easement |
|
Features
|
Wooded Area, Irregular Lot Size, Flat Site, Balcony, Carpet Free |
|
Parking Space Total
|
2 |
|
View Type
|
View, Lake View, Direct Water View |
|
Water Front Name
|
Lake Of Bays |
|
Water Front Type
|
Waterfront On Lake |
Building
|
Bathroom Total
|
3 |
|
Bedrooms Above Ground
|
2 |
|
Bedrooms Total
|
2 |
|
Age
|
6 To 10 Years |
|
Amenities
|
Fireplace(s) |
|
Appliances
|
Range, Water Purifier, Furniture |
|
Architectural Style
|
Bungalow |
|
Basement Type
|
None |
|
Cooling Type
|
Central Air Conditioning, Air Exchanger |
|
Exterior Finish
|
Wood |
|
Fire Protection
|
Alarm System, Monitored Alarm |
|
Fireplace Present
|
Yes |
|
Fireplace Total
|
1 |
|
Half Bath Total
|
1 |
|
Heating Fuel
|
Electric |
|
Heating Type
|
Forced Air, Heat Pump, Not Known |
|
Stories Total
|
1 |
|
Size Interior
|
1,200 - 1,399 Sqft |
Parking
Land
|
Access Type
|
Private Docking |
|
Acreage
|
No |
|
Land Amenities
|
Golf Nearby |
|
Zoning Description
|
Resort Recreational |
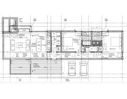
Rooms
| Level |
Type |
Length |
Width |
Dimensions |
|
Main Level |
Great Room |
16 m |
16 m |
16 m x 16 m |
|
Main Level |
Kitchen |
16 m |
14 m |
16 m x 14 m |
|
Main Level |
Bedroom |
12 m |
16 m |
12 m x 16 m |
|
Main Level |
Bedroom 2 |
12 m |
16 m |
12 m x 16 m |
Utilities
https://www.realtor.ca/real-estate/29508588/bigwin-island-13-unit-8-bigwin-island-lake-of-bays-franklin-franklin