3 Bedroom
3 Bathroom
1,820 sqft
Bungalow
Central Air Conditioning
Forced Air
Landscaped
$639,000Maintenance, Insurance, Cable TV, Common Area Maintenance, Landscaping, Property Management
$637.36 Monthly
Stylish, upgraded condo townhome in the vibrant lakeside community of Port Dover! Built in 2020 and featuring over $25,000 in custom upgrades, this beautiful home combines modern design with peaceful nature views and an abundance of natural light. Step inside and you’ll immediately feel the difference. The bright, open-concept main floor features high ceilings and a seamless flow from the living and dining area into the kitchen—perfect for entertaining or everyday living. The gourmet kitchen offers a large island with bar seating, quartz counter tops, soft closed cabinetry, stainless steel appliances and sliding doors leading you to the 9X10 back deck. The main-floor primary bedroom is a standout feature, complete with a generous walk-in closet and a private 4-piece ensuite featuring a beautiful 5’ walk-in shower. Main floor laundry, a two piece bathroom and inside access to the single car garage completes the main floor. Upstairs, the versatile loft space is perfect for a home office, lounge, or reading nook, along with two additional spacious bedrooms and another 4-piece bathroom. The unfinished basement offers endless potential, giving you the opportunity to create additional living space, a rec room, or whatever suits your lifestyle. Upgrades include: Quartz counter tops, recessed panel cabinetry, luxury vinyl flooring throughout, 12x24 ceramic tile in bathrooms, 8’ interior doors, and solid oak staircases. (id:47351)
Property Details
|
MLS® Number
|
40811012 |
|
Property Type
|
Single Family |
|
Amenities Near By
|
Beach, Golf Nearby |
|
Equipment Type
|
Water Heater |
|
Features
|
Automatic Garage Door Opener |
|
Parking Space Total
|
2 |
|
Rental Equipment Type
|
Water Heater |
Building
|
Bathroom Total
|
3 |
|
Bedrooms Above Ground
|
3 |
|
Bedrooms Total
|
3 |
|
Appliances
|
Dishwasher, Dryer, Refrigerator, Stove, Washer, Microwave Built-in, Window Coverings, Garage Door Opener |
|
Architectural Style
|
Bungalow |
|
Basement Development
|
Unfinished |
|
Basement Type
|
Full (unfinished) |
|
Construction Style Attachment
|
Attached |
|
Cooling Type
|
Central Air Conditioning |
|
Exterior Finish
|
Brick Veneer, Vinyl Siding |
|
Half Bath Total
|
1 |
|
Heating Fuel
|
Natural Gas |
|
Heating Type
|
Forced Air |
|
Stories Total
|
1 |
|
Size Interior
|
1,820 Sqft |
|
Type
|
Row / Townhouse |
|
Utility Water
|
Municipal Water |
Parking
Land
|
Acreage
|
No |
|
Land Amenities
|
Beach, Golf Nearby |
|
Landscape Features
|
Landscaped |
|
Sewer
|
Municipal Sewage System |
|
Size Total Text
|
Unknown |
|
Zoning Description
|
R4 |
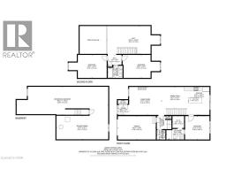
Rooms
| Level |
Type |
Length |
Width |
Dimensions |
|
Second Level |
4pc Bathroom |
|
|
6'6'' x 7'7'' |
|
Second Level |
Bedroom |
|
|
14'8'' x 12'3'' |
|
Second Level |
Bedroom |
|
|
12'3'' x 15'3'' |
|
Second Level |
Loft |
|
|
11'4'' x 22'10'' |
|
Basement |
Other |
|
|
41'10'' x 14'0'' |
|
Basement |
Utility Room |
|
|
27'0'' x 12'7'' |
|
Main Level |
2pc Bathroom |
|
|
5'0'' x 4'5'' |
|
Main Level |
Laundry Room |
|
|
7'7'' x 6'10'' |
|
Main Level |
Other |
|
|
6'1'' x 6'1'' |
|
Main Level |
4pc Bathroom |
|
|
5'7'' x 9'3'' |
|
Main Level |
Primary Bedroom |
|
|
12'11'' x 12'3'' |
|
Main Level |
Living Room/dining Room |
|
|
29'0'' x 14'8'' |
|
Main Level |
Kitchen |
|
|
14'8'' x 11'9'' |
https://www.realtor.ca/real-estate/29466741/744-nelson-street-unit-5-port-dover