73 Hideaway Road Kagawong, Ontario P0P 1J0

3 Bedroom 2 Bathroom
3 Level, Character Fireplace Heat Pump, In Floor Heating, Wood Stove Acreage

$798,500

Welcome to this exceptional 100-acre property in the rural community of Kagawong, offering a mix of open fields and mature bush on a scenic corner lot. The setting has the feel of an old farmstead with four log outbuildings, a garage with hydro, wood-burning sauna, stamped concrete patio, and private trails. The home sits well back from the road and features vinyl siding and a modern tile-style metal roof. Inside, you’ll find warmth and character throughout, highlighted by pine flooring. The spacious entrance doubles as a sitting room with a wood stove, 3-piece bath, and a loft suite perfect for guests. A large formal dining room leads to the updated kitchen, complete with an antique wood cookstove, modern appliances, tile flooring, and a dual-level island. A cozy living room with propane fireplace, front hall, pantry, laundry area, and utility room complete the main floor. The second level offers two inviting bedrooms and a generous 4-piece bathroom with a freestanding tub. The third floor adds a flexible bonus room ideal for an additional bedroom, sitting area, or home gym. Mechanical highlights include in-floor propane heat on the main level, wood stove at the entrance, propane fireplace in the living room, heat pump with air conditioning, electric convection heaters upstairs, drilled well, septic system, hot water on demand, and an indoor cistern. Hydro services both the sauna and garage. Antique furniture that complements the home’s character is negotiable. A rare opportunity to own a spacious, character-filled home on a stunning parcel of Manitoulin countryside—perfect for those seeking privacy, charm, and year-round outdoor enjoyment. (id:47351)

Property Details

MLS® Number 2125773
Property Type Single Family
Amenities Near By Park, Playground, Shopping
Community Features Bus Route, Family Oriented, Quiet Area, Rural Setting
Equipment Type Propane Tank
Rental Equipment Type Propane Tank
Road Type Gravel Road, No Thru Road
Storage Type Storage Shed
Structure Shed, Patio(s), Workshop

Building

Bathroom Total 2
Bedrooms Total 3
Architectural Style 3 Level, Character
Basement Type Crawl Space
Exterior Finish Vinyl Siding
Fire Protection Smoke Detectors
Fireplace Fuel Wood,propane,wood
Fireplace Present Yes
Fireplace Total 3
Fireplace Type Free Standing Metal,free Standing Metal,woodstove
Flooring Type Hardwood, Laminate, Tile
Foundation Type Concrete
Heating Type Heat Pump, In Floor Heating, Wood Stove
Roof Material Metal
Roof Style Unknown
Stories Total 3
Type House
Utility Water Drilled Well

Parking

Detached Garage

Land

Acreage Yes
Fence Type Not Fenced
Land Amenities Park, Playground, Shopping
Sewer Septic System
Size Total Text 50 - 100 Acres
Zoning Description Rural

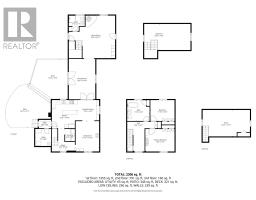
Rooms

Level Type Dimensions
Second Level Bedroom 22'8"" x 12'9""
Second Level 4pc Bathroom 11' x 10'3""
Second Level Primary Bedroom 14'4"" x 11'
Second Level Bedroom 11'10"" x 10'3""
Third Level Other 23'2"" x 12'11""
Main Level Laundry Room 4'10"" x 6'
Main Level Living Room 11'10"" x 14'10""
Main Level Kitchen 12'5"" x 13'10""
Main Level Dining Room 13' x 19'10""
Main Level 3pc Bathroom 7'10"" x 7'7""
Main Level Family Room 22'8"" x 20'11""

https://www.realtor.ca/real-estate/29137973/73-hideaway-road-kagawong-manitoulin-island