675 Tecumseh Road W Windsor, Ontario N8Z 1H4

64,000 sqft
None No Heat Acreage

$8,500,000

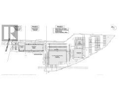
64000+ sq ft building on 14+ Acres of Industrial zoned land. Located right in the City of Windsor. Excellent opportunity for Owner operator and Investors as the building is currently vacant. Seller is already working with City of Windsor to convert existing building into Industrial condo units. Sellers willing to assist in development if needed or can stay in project as a 50% partner. Concept plans and 3d renderings can be shared as part of due diligence.. (id:47351)

Business

Business Type Industrial
Business Sub Type Warehouse

Property Details

MLS® Number X12569318
Property Type Industrial
Parking Space Total 100

Building

Age 31 To 50 Years
Cooling Type None
Heating Type No Heat
Size Exterior 64000 Sqft
Size Interior 64,000 Sqft
Type Warehouse
Utility Water Municipal Water

Land

Acreage Yes
Size Irregular 13.95
Size Total 13.95 Ac
Size Total Text 13.95 Ac
Zoning Description Md1 (warehouse / Manufacturing)

https://www.realtor.ca/real-estate/29129393/675-tecumseh-road-w-windsor