2,100 sqft
Fully Air Conditioned
Forced Air
$3,000 Monthly
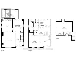
Unique opportunity to lease professional office space in a detached 3-storey century home offering exceptional visibility and charm. This versatile property is ideal for a variety of professional sectors or community partners seeking a welcoming, accessible environment. Features include abundant natural light, 9-ft ceilings on the lower level, a full kitchen, multiple bathrooms, and an open-concept layout on the main floor. Convenient front entrance with employee access to the rear, plus six landlord-maintained parking spaces and additional street parking. Excellent exposure to vehicle and pedestrian traffic. Landlord is open to considering leasehold improvements to suit tenant needs. (id:47351)
Property Details
|
MLS® Number
|
X12772368 |
|
Property Type
|
Office |
|
Community Name
|
Owen Sound |
|
Equipment Type
|
Water Heater |
|
Rental Equipment Type
|
Water Heater |
Building
|
Appliances
|
Dishwasher |
|
Cooling Type
|
Fully Air Conditioned |
|
Heating Fuel
|
Natural Gas |
|
Heating Type
|
Forced Air |
|
Size Exterior
|
2100 Sqft |
|
Size Interior
|
2,100 Sqft |
|
Type
|
Offices |
|
Utility Water
|
Municipal Water |
Land
|
Acreage
|
No |
|
Size Depth
|
60 Ft |
|
Size Frontage
|
52 Ft ,9 In |
|
Size Irregular
|
Bldg=52.82 X 60 Ft |
|
Size Total Text
|
Bldg=52.82 X 60 Ft |
|
Zoning Description
|
C1-3 |
https://www.realtor.ca/real-estate/29340762/648-2nd-avenue-e-owen-sound-owen-sound