Central Air Conditioning
Forced Air
$16 / ft2
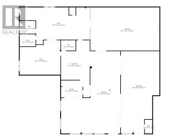
6,000 sq ft industrial space with showroom or storefront for lease on Notre Dame Avenue, offering exceptional visibility with over 30,000 vehicles per day. This versatile unit features an overhead dock-level door, open and functional layout, and plenty of on-site parking for customers, staff, and deliveries. Centrally located with excellent accessibility and ease of entry, this M1-1 Zoned property is ideal for retail showroom, light industrial, distribution, or mixed commercial use in one of Sudbury’s busiest commercial corridors. Very affordable additional rent of $3.25 + 5% admin fee. Available May 1, 2026. (id:47351)
Business
|
Business Type
|
Industrial |
|
Business Sub Type
|
General industrial |
Property Details
|
MLS® Number
|
2125757 |
|
Property Type
|
Industrial |
|
Equipment Type
|
None |
|
Rental Equipment Type
|
None |
|
Road Type
|
Paved Road |
Building
|
Amenities
|
Air Conditioning, Shopping Area, Storefront |
|
Cooling Type
|
Central Air Conditioning |
|
Exterior Finish
|
Metal |
|
Flooring Type
|
Concrete |
|
Heating Type
|
Forced Air |
|
Utility Water
|
Municipal Water |
Parking
Land
|
Access Type
|
Road Access, Year-round Access |
|
Acreage
|
No |
|
Sewer
|
Municipal Sewage System |
|
Size Total Text
|
32,670 - 43,559 Sqft (3/4 - 1 Ac) |
|
Zoning Description
|
M1-1 |
https://www.realtor.ca/real-estate/29145039/560-notre-dame-street-unit-4-sudbury