$599,000
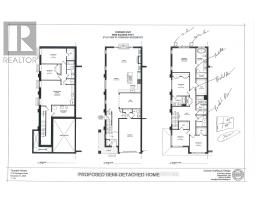
Rare opportunity to build in one of Mississauga's most established neighbourhoods starts here! This vacant land at 5287 Durie Rd offers a proposed lot frontage of 9.00m with a lot area of 342.90 sq m (3,690.95 sq ft), forming part of a Committee of Adjustment approved consent to create 6 lots for 3 pairs of semi-detached homes. Zoned RL, permitting semi-detached dwellings. Whether you are a builder, investor or end user looking to design your dream home, this is a rare chance to break ground in a prime location. Steps to Durie Road amenities, minutes to Streetsville GO Station, Erin Mills Town Centre, Credit Valley Hospital, top rated schools and the scenic Credit River trail system. Quick access to Highways 401 and 403 makes this an unbeatable location. (id:47351)
Property Details
|
MLS® Number
|
W12808180 |
|
Property Type
|
Vacant Land |
|
Community Name
|
East Credit |
|
Amenities Near By
|
Park, Public Transit, Schools, Place Of Worship |
|
Community Features
|
Community Centre |
|
Equipment Type
|
Air Conditioner, Water Heater, Furnace |
|
Rental Equipment Type
|
Air Conditioner, Water Heater, Furnace |
Building
|
Utility Water
|
Municipal Water |
Parking
Land
|
Acreage
|
No |
|
Land Amenities
|
Park, Public Transit, Schools, Place Of Worship |
|
Sewer
|
Sanitary Sewer |
|
Size Depth
|
125 Ft |
|
Size Frontage
|
30 Ft |
|
Size Irregular
|
30 X 125 Ft |
|
Size Total Text
|
30 X 125 Ft|under 1/2 Acre |
Utilities
|
Cable
|
Available |
|
Electricity
|
Available |
|
Sewer
|
Available |
https://www.realtor.ca/real-estate/29385214/5287-durie-road-mississauga-east-credit-east-credit