2 Bedroom
1 Bathroom
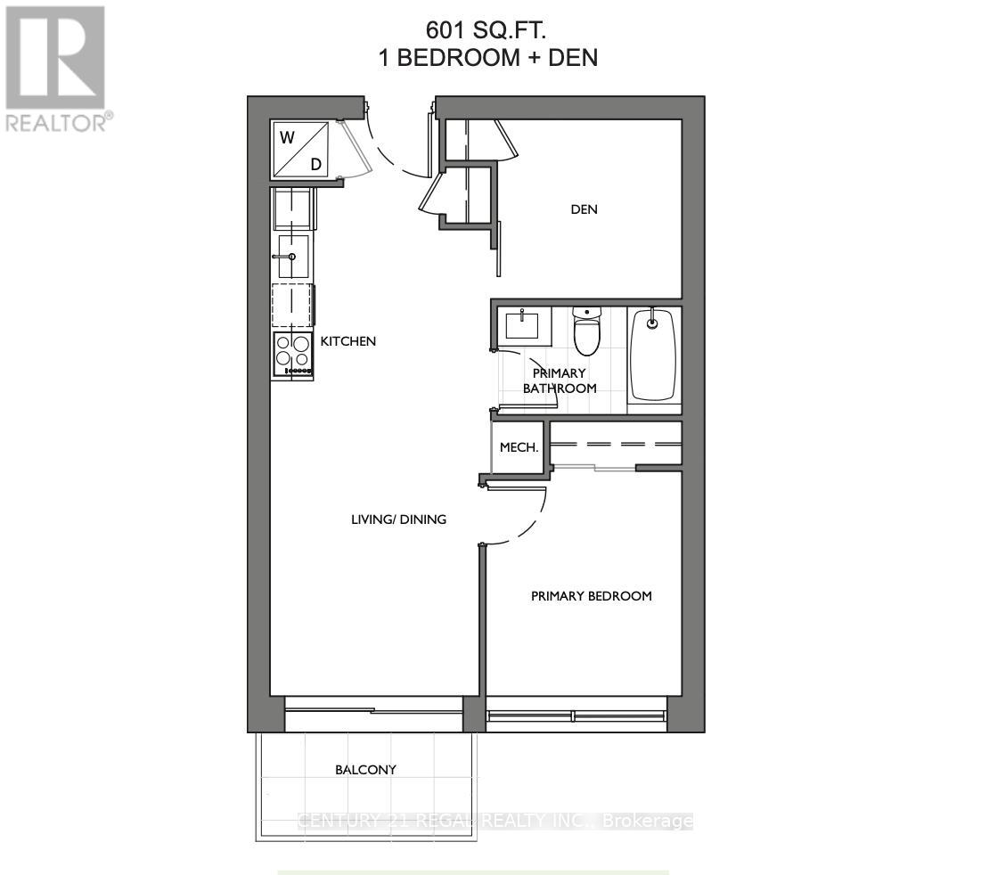
600 - 699 sqft
Multi-Level
Central Air Conditioning
Heat Pump
$300,000
Stop maintaining a cottage. Start enjoying one.Welcome to Muskoka Bay Resort Residences Phase 2 - where you get the Muskoka lifestyle without the endless upkeep, surprise repair bills, or year-round carrying costs of traditional cottage ownership.This fully furnished 1 Bedroom + Den (den functions like a second bedroom) offers approximately 601 sq.ft. of smart, modern space designed for both personal enjoyment and income potential. Whether hosting family or guests, the flexible layout comfortably sleeps more than a typical one-bedroom suite.No septic. No dock maintenance. No cutting grass. No winterizing. No driving up just to check on pipes.Just arrive and relax.Ownership includes access to the championship golf course, infinity pool, clubhouse dining, fitness centre, and premium resort amenities in one of Muskoka's most recognized communities. Minutes to Lake Muskoka and downtown Gravenhurst.Here's where it gets powerful: when you're not using it, the suite can be placed into the resort's professionally managed rental program. Instead of sitting vacant like most cottages, this property has the potential to generate income - helping offset ownership costs - all without you managing bookings, cleaners, or guests.Fully furnished. Professionally managed. Turnkey.This is cottage ownership upgraded - simpler, smarter, and built to work for you.Why own a property that drains your time and money... when you can own one that could pay you back? (id:47351)
Property Details
|
MLS® Number
|
X12799802 |
|
Property Type
|
Single Family |
|
Community Features
|
Pets Allowed With Restrictions |
|
Features
|
Balcony, In Suite Laundry |
|
Parking Space Total
|
1 |
Building
|
Bathroom Total
|
1 |
|
Bedrooms Above Ground
|
1 |
|
Bedrooms Below Ground
|
1 |
|
Bedrooms Total
|
2 |
|
Appliances
|
Range, Water Meter, All |
|
Architectural Style
|
Multi-level |
|
Basement Type
|
None |
|
Cooling Type
|
Central Air Conditioning |
|
Exterior Finish
|
Brick |
|
Heating Fuel
|
Natural Gas |
|
Heating Type
|
Heat Pump |
|
Size Interior
|
600 - 699 Sqft |
|
Type
|
Apartment |
Parking
Land
Rooms
| Level |
Type |
Length |
Width |
Dimensions |
|
Flat |
Bedroom |
1 m |
1 m |
1 m x 1 m |
|
Flat |
Den |
1 m |
1 m |
1 m x 1 m |
|
Flat |
Kitchen |
1 m |
1 m |
1 m x 1 m |
|
Flat |
Living Room |
1 m |
1 m |
1 m x 1 m |
|
Flat |
Dining Room |
1 m |
1 m |
1 m x 1 m |
|
Flat |
Bathroom |
1 m |
1 m |
1 m x 1 m |
https://www.realtor.ca/real-estate/29375255/510-1217-n-muldrew-lake-road-muskoka