461 Northport Drive Saugeen Shores, Ontario N0H 2C8

4 Bedroom 3 Bathroom 1,500 - 2,000 sqft
Bungalow Fireplace Central Air Conditioning, Air Exchanger Forced Air

$999,900

The kitchen is in and this brand new bungalow could be your new home at 461 Northport Drive in Port Elgin in just 30 days. One of the Builder's most popular plans; could it be the 6'8 x 6'8 walk in pantry, large finished basement, covered front porch, vaulted ceiling in the LR / DR & Kitchen or covered back deck that make it a best seller. The main floor boasts 1605 sqft of living space and the basement is accessible from the 2 car garage that measures 25'8 x 21'10. Standard features include Quartz kitchen counter tops, gas fireplace, central air, main floor laundry with cabinets for added storage, automatic garage door openers, double concrete drive, sodded yard and more. HST is included in the list price provided the Buyer qualifies for the rebate and assigns it to the Builder on closing. (id:47351)

Property Details

MLS® Number X11822708
Property Type Single Family
Community Name Saugeen Shores
Amenities Near By Schools
Equipment Type Water Heater, Water Heater - Tankless
Features Flat Site, Sump Pump
Parking Space Total 4
Rental Equipment Type Water Heater, Water Heater - Tankless
Structure Deck, Porch

Building

Bathroom Total 3
Bedrooms Above Ground 2
Bedrooms Below Ground 2
Bedrooms Total 4
Age New Building
Amenities Fireplace(s)
Appliances Water Heater - Tankless, Water Meter, Garage Door Opener
Architectural Style Bungalow
Basement Features Walk-up, Separate Entrance
Basement Type N/a, N/a
Construction Style Attachment Detached
Cooling Type Central Air Conditioning, Air Exchanger
Exterior Finish Stone, Vinyl Siding
Fireplace Present Yes
Fireplace Total 1
Flooring Type Hardwood, Tile
Foundation Type Poured Concrete
Heating Fuel Natural Gas
Heating Type Forced Air
Stories Total 1
Size Interior 1,500 - 2,000 Sqft
Type House
Utility Water Municipal Water

Parking

Attached Garage
Garage

Land

Access Type Year-round Access
Acreage No
Land Amenities Schools
Sewer Sanitary Sewer
Size Depth 132 Ft ,2 In
Size Frontage 48 Ft ,8 In
Size Irregular 48.7 X 132.2 Ft
Size Total Text 48.7 X 132.2 Ft|under 1/2 Acre
Zoning Description R2-11

Rooms

Level Type Dimensions
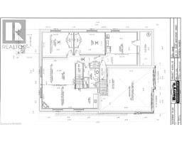
Basement Bedroom 4 3.38 m x 4.01 m
Basement Utility Room 4.72 m x 4.93 m
Basement Family Room 2.95 m x 3.1 m
Basement Family Room 7.67 m x 5 m
Basement Bedroom 3 3.76 m x 4.01 m
Main Level Foyer 1.93 m x 2.57 m
Main Level Bedroom 2 3.33 m x 3.63 m
Main Level Laundry Room 2.39 m x 2.92 m
Main Level Primary Bedroom 3.63 m x 5 m
Main Level Great Room 4.19 m x 5.13 m
Main Level Dining Room 3.81 m x 3.94 m
Main Level Kitchen 3.81 m x 3.81 m

Utilities

Cable Available
Electricity Installed
Wireless Available
Sewer Installed

https://www.realtor.ca/real-estate/27668477/461-northport-drive-saugeen-shores-saugeen-shores