37 Main Street Markham, Ontario L3R 2E5
1 Acres
Acreage
$4,180,000
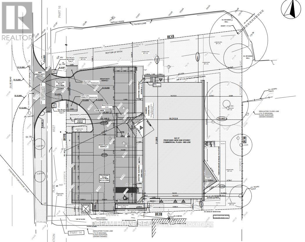
Rarely offer Vacant Commercial land (0.6 Acres) in Prime Unionville Community. A 2 Story Plaza Building with 18 parking spots has been approved. All approved permit drawings, consultation report and design are included. (id:47351)
Property Details
| MLS® Number | N12422983 |
| Property Type | Vacant Land |
| Community Name | Unionville |
Building
| Size Interior | 1 Acres |
| Utility Water | Municipal Water |
Land
| Acreage | Yes |
| Size Depth | 161 Ft ,9 In |
| Size Frontage | 147 Ft |
| Size Irregular | 23522 |
| Size Total | 23522 Ac |
| Size Total Text | 23522 Ac |
| Zoning Description | Retail/office/restaurant/health Centre.. |
https://www.realtor.ca/real-estate/28905015/37-main-street-markham-unionville-unionville





