32 Creighton Road Brockton, Ontario N0G 2V0

8,000 sqft
Fully Air Conditioned Other Acreage

$15

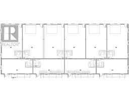
Secure your spot in one of Walkerton's most sought-after industrial corridors with the final 8,000 sq ft unit in this premium build-to-suit development. Fully customizable to meet your specific business needs, this state-of-the-art space is ideal for light industrial use, warehouse operations, tradesperson shops, office or contractor yards. Featuring 14-foot clear ceiling heights, 12-foot shipping doors, and flexible layout options, this unit offers the perfect blend of functionality and modern design. Located in a fast-growing area surrounded by residential development, the Best Western, Balaklava Audio, and future expansion lands, with the regional soccer park just steps away and easy highway access. Built for entrepreneurs, builders, distributors, and operators who need space that adapts to their business. (id:47351)

Property Details

MLS® Number X12486880
Property Type Office
Community Name Brockton
Farm Type Other

Building

Cooling Type Fully Air Conditioned
Heating Type Other
Size Interior 8,000 Sqft
Type Offices
Utility Water Municipal Water

Land

Acreage Yes
Size Depth 472 Ft
Size Frontage 367 Ft
Size Irregular 4.04
Size Total 4.04 Ac
Size Total Text 4.04 Ac
Zoning Description Bp2 (business Park 2)

https://www.realtor.ca/real-estate/29042387/32-creighton-road-brockton-brockton