316 Picton Main Street Prince Edward County, Ontario K0K 2T0

3 Bathroom 2,100 sqft
Fully Air Conditioned Baseboard Heaters

$22 / ft2

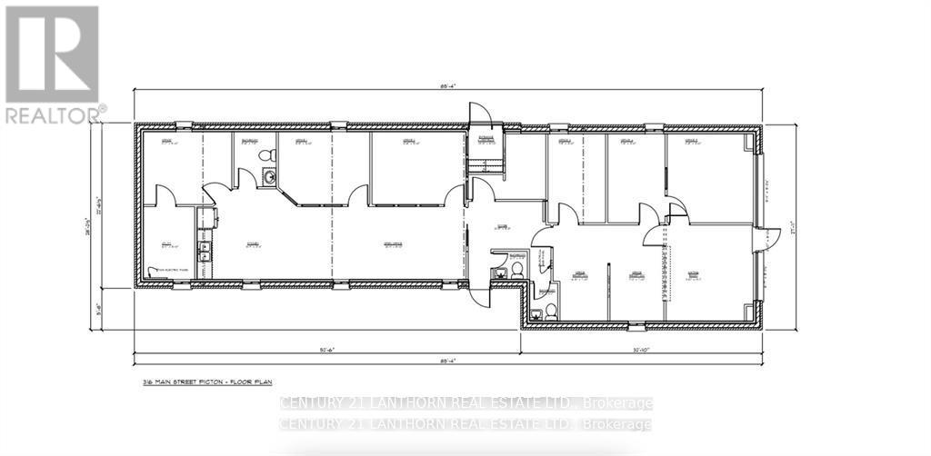
Prime Picton location for your business! Located on the corner of Picton Main Street and Bridge Street with frontage on both. You won't find exposure anywhere else in Picton quite like this. Offering 2100 square feet and zoned Core Commercial. As of right now the space is designed for offices offering 3 washrooms, 6 offices and parking for 5 vehicles. Core Commercial zoning allows this building to be used as a restaurant or retail space. Potential for two separate commercial tenants to use the space. (id:47351)

Property Details

MLS® Number X12698670
Property Type Retail
Community Name Picton Ward
Amenities Near By Recreation
Parking Space Total 5

Building

Bathroom Total 3
Cooling Type Fully Air Conditioned
Heating Type Baseboard Heaters
Size Interior 2,100 Sqft
Utility Water Municipal Water

Land

Acreage No
Land Amenities Recreation
Size Depth 110 Ft ,4 In
Size Frontage 32 Ft ,4 In
Size Irregular 32.38 X 110.39 Ft
Size Total Text 32.38 X 110.39 Ft
Zoning Description Core Commercial

https://www.realtor.ca/real-estate/29253954/316-picton-main-street-prince-edward-county-picton-ward-picton-ward