Fully Air Conditioned
Forced Air
$999,500
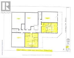
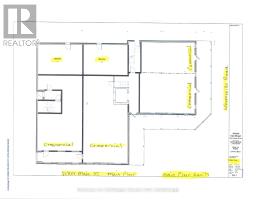
Great Investment opportunity! Golden opportunity to bring back the nostalgia of once was at this prime corner property in the quaint village of Stevensville. 18 units in total, combination of 4 commercial and 14 residential units to be built. SITE PLAN APPROVED. GRANTS AVAILABLE FROM THE MUNICIPALITY. Buyer responsible for own due diligence. (id:47351)
Property Details
|
MLS® Number
|
X12680674 |
|
Property Type
|
Business |
|
Community Name
|
328 - Stevensville |
Building
|
Cooling Type
|
Fully Air Conditioned |
|
Heating Fuel
|
Natural Gas |
|
Heating Type
|
Forced Air |
|
Utility Water
|
Municipal Water |
Land
|
Acreage
|
No |
|
Size Frontage
|
118 Ft ,9 In |
|
Size Irregular
|
118.8 Ft |
|
Size Total Text
|
118.8 Ft |
|
Zoning Description
|
Cmu5 |
https://www.realtor.ca/real-estate/29233993/2567-stevensville-road-fort-erie-stevensville-328-stevensville