204a - 716 Gordon Baker Road Toronto, Ontario M2H 3B4
2,064 sqft
Fully Air Conditioned
Forced Air
$11 / ft2
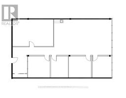
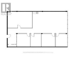
Prime Location! Situated near the junction of Hwy 404 and Steeles Avenue, with easy access to Woodbine Avenue, DVP, Hwy 401, and Hwy 407, this office unit boasts unparalleled convenience. Featuring three spacious office rooms, a well-appointed boardroom, a generously-sized open office area, a convenient kitchenette, and a welcoming reception area, this space is ideal for any business looking to thrive in a strategic and accessible location. (id:47351)
Property Details
| MLS® Number | C12489382 |
| Property Type | Office |
| Community Name | Hillcrest Village |
Building
| Cooling Type | Fully Air Conditioned |
| Heating Fuel | Natural Gas |
| Heating Type | Forced Air |
| Size Interior | 2,064 Sqft |
| Type | Offices |
| Utility Water | Municipal Water |
Land
| Acreage | No |
| Zoning Description | Office |



































































