203 - 109 Vanderhoof Avenue Toronto, Ontario M4G 2H7
1 Bathroom
9,435 sqft
Fully Air Conditioned
Forced Air
$21 / ft2
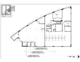
Fabulous Second Floor Premier Office Space Combining Traditional Post and Beam Interior With Modern High End Finishes. Plenty of Natural Light, Featuring Private Entrance, High Ceilings and Corner Exposure On Two Sides. Extremely Flexible Space With Private Boardrooms. Large Open Areas and Private Offices. Also Includes Large Kitchen and Private Washroom. Great Signage. Plenty of Parking. Conveniently Located Just Minutes from Laird and Eglinton. Space could be demised into two equal sized units. See Attached Drawings. (id:47351)
Business
| Business Type | Other |
| Business Sub Type | Professional office(s) |
Property Details
| MLS® Number | C12755718 |
| Property Type | Office |
| Community Name | Leaside |
| Features | Elevator |
Building
| Bathroom Total | 1 |
| Cooling Type | Fully Air Conditioned |
| Heating Fuel | Natural Gas |
| Heating Type | Forced Air |
| Size Interior | 9,435 Sqft |
| Type | Offices |
| Utility Water | Municipal Water |
Land
| Acreage | No |
| Zoning Description | Elo.75 |
https://www.realtor.ca/real-estate/29321097/203-109-vanderhoof-avenue-toronto-leaside-leaside











































