200 - 109 Vanderhoof Avenue Toronto, Ontario M4G 2H7

1 Bathroom 3,210 sqft
Fully Air Conditioned Forced Air

$21 / ft2

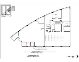
Fabulous Second Floor Premier Office Space Combining Traditional Post and Beam Interior With Modern High End Finishes. Plenty of Natural Light, Featuring Private Entrance, High Ceilings and Corner Exposure On Two Sides. Extremely Flexible Space With Private Boardrooms. Large Open Areas and Private Offices. Also Includes Large Kitchen and Private Washroom. Great Signage. Plenty of Parking. Conveniently Located Just Minutes from Laird and Eglinton. Space could be demised into two equal sized units. See Attached Drawings. (id:47351)

Business

Business Type Other
Business Sub Type Professional office(s)

Property Details

MLS® Number C12755772
Property Type Office
Community Name Leaside

Building

Bathroom Total 1
Cooling Type Fully Air Conditioned
Heating Fuel Natural Gas
Heating Type Forced Air
Size Interior 3,210 Sqft
Type Offices
Utility Water Municipal Water

Land

Acreage No
Zoning Description Elo.75

https://www.realtor.ca/real-estate/29321170/200-109-vanderhoof-avenue-toronto-leaside-leaside