1604 - 2155 Burnhamthorpe Road W Mississauga, Ontario L5L 5P4

2 Bedroom 2 Bathroom 1,200 - 1,399 sqft
Indoor Pool Central Air Conditioning Forced Air

$549,000

Maintenance, Heat, Electricity, Water, Cable TV, Common Area Maintenance, Parking, Insurance

$1,202.76 Monthly

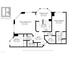
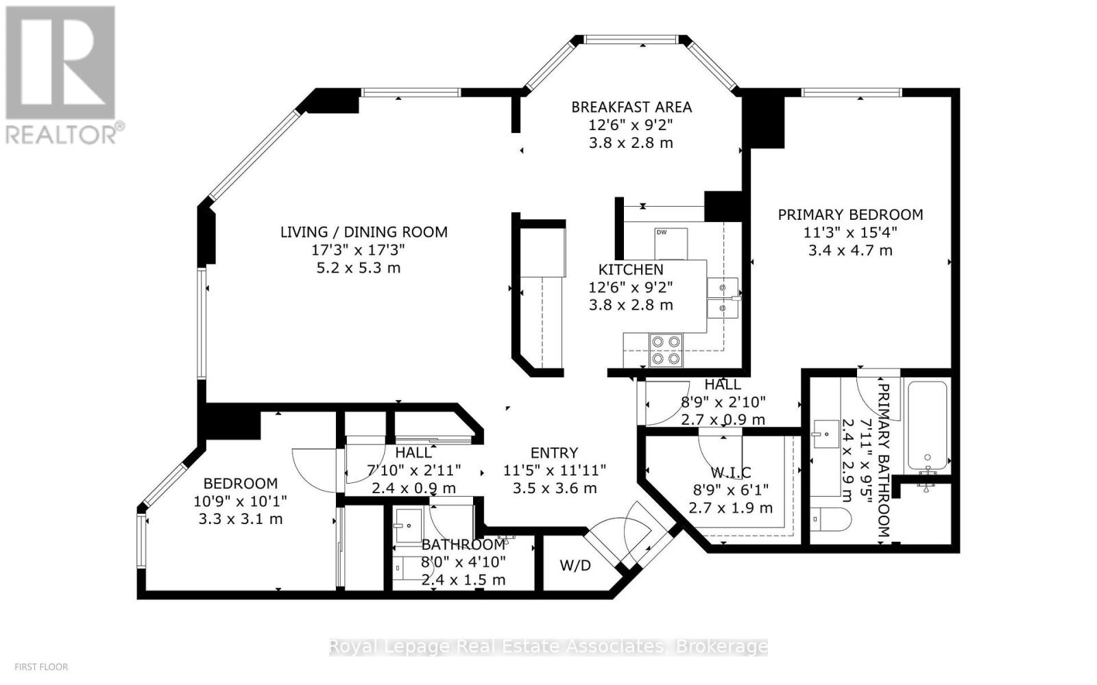
Bright & spacious 2 bedroom, 2 bath corner unit with over 1200 sq.ft in the prestigious gated community of Eagle Ridge! Panoramic views of downtown and the lake with an abundance of natural light that streams through the many windows of this home. Open concept living/dining area. The kitchen includes an eating area & breakfast bar. Desirable split bedroom design with the primary bedroom featuring a 4 pc. ensuite with a separate tub & shower as well as large walk-in closet. This unit includes 2 owned parking spots & one locker! Fantastic amenities with a private clubhouse including an indoor pool, hot tub, exercise room, sauna, squash courts, BBQ area & playground. Enjoy peace of mind with 24 hour security. Maintenance fees also include heat, hydro, water, internet & cable! Hassle free living! Convenient location & steps to transit & shopping at South Common Mall. Close to Credit Valley Hospital, schools, UTM Mississauga campus, Erindale & Clarkson Go Stations. (id:47351)

Property Details

MLS® Number W12894866
Property Type Single Family
Community Name Erin Mills
Amenities Near By Hospital, Park, Public Transit
Community Features Pets Allowed With Restrictions, Community Centre
Features Carpet Free
Parking Space Total 2
Pool Type Indoor Pool
Structure Squash & Raquet Court

Building

Bathroom Total 2
Bedrooms Above Ground 2
Bedrooms Total 2
Amenities Party Room, Sauna, Exercise Centre, Storage - Locker
Appliances Dishwasher, Dryer, Range, Stove, Washer, Water Treatment, Refrigerator
Basement Type None
Cooling Type Central Air Conditioning
Exterior Finish Concrete
Flooring Type Laminate, Tile
Heating Fuel Natural Gas
Heating Type Forced Air
Size Interior 1,200 - 1,399 Sqft
Type Apartment

Parking

Underground
Garage

Land

Acreage No
Land Amenities Hospital, Park, Public Transit

Rooms

Level Type Dimensions
Main Level Living Room 5.3 m x 5.2 m
Main Level Dining Room 5.3 m x 5.2 m
Main Level Kitchen 3.8 m x 2.8 m
Main Level Eating Area 3.8 m x 2.8 m
Main Level Primary Bedroom 4.7 m x 3.4 m
Main Level Bedroom 2 3.3 m x 3.1 m

https://www.realtor.ca/real-estate/29484737/1604-2155-burnhamthorpe-road-w-mississauga-erin-mills-erin-mills