1112 - 25 Cordova Avenue Toronto, Ontario M9A 0E5

2 Bedroom 2 Bathroom 700 - 799 sqft
Central Air Conditioning Forced Air Landscaped

$2,800 Monthly

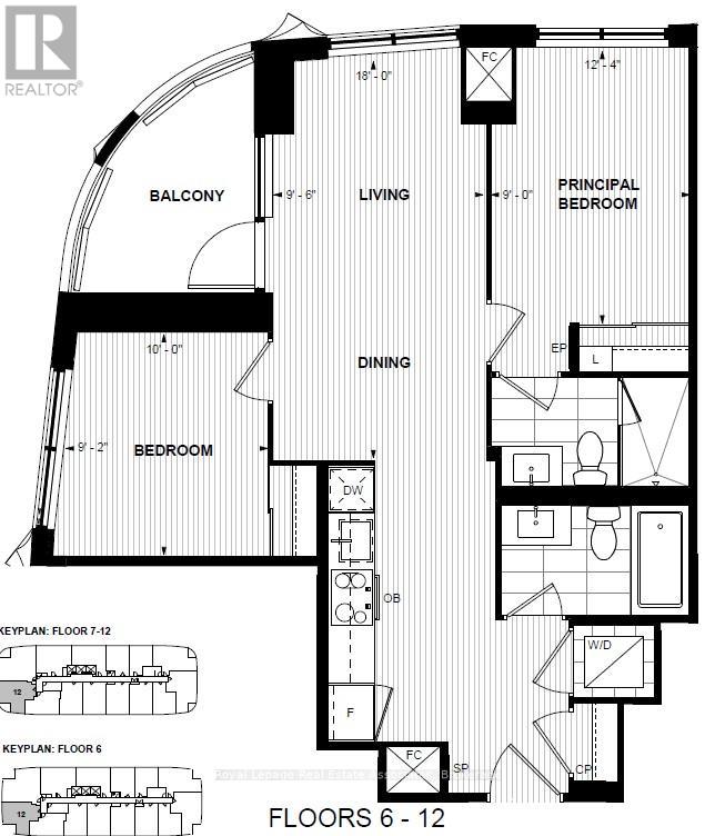
***WITH PARKING & LOCKER*** Welcome to Westerly 1 at 25 Cordova Avenue, where contemporary design meets everyday convenience in the heart of Islington-City Centre West. This brand-new 2-bedroom, 2-bathroom suite offers 767 sq. ft. of thoughtfully designed interior space, featuring a bright, carpet-free layout and modern finishes throughout, complete with an exclusive parking space and dedicated locker for added convenience. The sleek kitchen is equipped with built-in stainless steel appliances and contemporary cabinetry, flowing seamlessly into the combined living and dining area. Floor-to-ceiling windows enhance natural light, while a walk-out from the living space leads to an open balcony with southwest exposure, extending the living area outdoors. The primary bedroom features a floor-to-ceiling window, closet, and private 3-piece ensuite. The second bedroom includes its own closet and floor-to-ceiling window, complemented by a separate 4-piece bathroom. In-suite laundry is conveniently located in a dedicated closet, maintaining an efficient and functional layout. Residents enjoy access to premium amenities including a fitness centre, business centre (WiFi building), guest suites, party and meeting rooms, and concierge service. Ideally situated steps from Islington Station, parks, schools, and everyday conveniences, this suite offers comfortable, well-connected urban living in a highly desirable Etobicoke community. (id:47351)

Property Details

MLS® Number W12899606
Property Type Single Family
Neigbourhood Islington
Community Name Islington-City Centre West
Amenities Near By Golf Nearby, Park, Place Of Worship, Public Transit, Schools
Communication Type High Speed Internet
Community Features Pets Allowed With Restrictions
Features Balcony, Carpet Free
Parking Space Total 1

Building

Bathroom Total 2
Bedrooms Above Ground 2
Bedrooms Total 2
Age New Building
Amenities Exercise Centre, Party Room, Storage - Locker, Security/concierge
Basement Type None
Cooling Type Central Air Conditioning
Exterior Finish Concrete
Fire Protection Monitored Alarm
Heating Fuel Natural Gas
Heating Type Forced Air
Size Interior 700 - 799 Sqft
Type Apartment

Parking

Underground
Garage

Land

Acreage No
Land Amenities Golf Nearby, Park, Place Of Worship, Public Transit, Schools
Landscape Features Landscaped

Rooms

Level Type Dimensions
Main Level Foyer Measurements not available
Main Level Kitchen 2.44 m x 2.29 m
Main Level Dining Room 3.05 m x 2.44 m
Main Level Living Room 5.49 m x 2.9 m
Main Level Primary Bedroom 3.76 m x 2.74 m
Main Level Bedroom 2 3.05 m x 2.79 m
Main Level Laundry Room Measurements not available

https://www.realtor.ca/real-estate/29491215/1112-25-cordova-avenue-toronto-islington-city-centre-west-islington-city-centre-west