6 Bedroom
6 Bathroom
2,500 - 3,000 sqft
Fireplace
Central Air Conditioning
Forced Air
$5,500 Monthly
Annual lease available as of April, May, and October 2026! Note: Winter season rental is available at $7500 per month plus utilities. Welcome to this exceptional four-bedroom home, thoughtfully designed for both full-time living and the perfect ski-chalet getaway. The main level features a luxurious primary suite complete with a spa-inspired en suite offering double vanities, a large glass shower, and a separate soaker tub. A second bedroom includes its own private three-piece ensuite, while the remaining two bedrooms share a convenient Jack-and-Jill bathroom. The heart of the home is the stunning gourmet kitchen, ideal for any chef, complete with a butler's area and spacious walk-in pantry. The dining room offers lots of windows for bright natural light, creating a warm and inviting atmosphere. Beautiful hardwood flooring runs throughout, enhancing the elegance of every space. The living room features a two-sided fireplace, creating a seamless flow into the dining area and setting the tone for cozy, memorable gatherings. A well-appointed laundry area includes custom storage cubbies and direct access to the garage for added convenience. Enjoy breathtaking escarpment views, offering a serene and picturesque backdrop year-round. The impressive loggia, a covered outdoor deck with a gas fireplace, provides the perfect setting for warm, relaxing summer evenings. The lower level extends your living space with two generous bedrooms, a full bathroom, and a huge recreational room-an ideal spot for kids to hang out, play, and make lifelong memories. Book your private viewing today and experience the charm and comfort this incredible home has to offer. (id:47351)
Property Details
|
MLS® Number
|
X12628090 |
|
Property Type
|
Single Family |
|
Community Name
|
Blue Mountains |
|
Amenities Near By
|
Beach, Golf Nearby, Ski Area |
|
Features
|
Ravine, Conservation/green Belt |
|
Parking Space Total
|
6 |
|
View Type
|
Mountain View |
Building
|
Bathroom Total
|
6 |
|
Bedrooms Above Ground
|
4 |
|
Bedrooms Below Ground
|
2 |
|
Bedrooms Total
|
6 |
|
Age
|
New Building |
|
Basement Development
|
Finished |
|
Basement Type
|
N/a (finished) |
|
Construction Style Attachment
|
Detached |
|
Cooling Type
|
Central Air Conditioning |
|
Exterior Finish
|
Steel, Stone |
|
Fireplace Present
|
Yes |
|
Flooring Type
|
Hardwood, Carpeted |
|
Half Bath Total
|
1 |
|
Heating Fuel
|
Natural Gas |
|
Heating Type
|
Forced Air |
|
Stories Total
|
2 |
|
Size Interior
|
2,500 - 3,000 Sqft |
|
Type
|
House |
|
Utility Water
|
Municipal Water |
Parking
Land
|
Acreage
|
No |
|
Land Amenities
|
Beach, Golf Nearby, Ski Area |
|
Sewer
|
Sanitary Sewer |
|
Size Depth
|
280 Ft |
|
Size Frontage
|
60 Ft |
|
Size Irregular
|
60 X 280 Ft |
|
Size Total Text
|
60 X 280 Ft |
Rooms
| Level |
Type |
Length |
Width |
Dimensions |
|
Second Level |
Primary Bedroom |
5.73 m |
4.45 m |
5.73 m x 4.45 m |
|
Second Level |
Bedroom 2 |
3.65 m |
3.47 m |
3.65 m x 3.47 m |
|
Second Level |
Bedroom 3 |
3.47 m |
4.45 m |
3.47 m x 4.45 m |
|
Second Level |
Bedroom 4 |
4.08 m |
3.35 m |
4.08 m x 3.35 m |
|
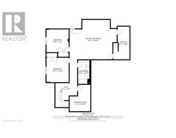
Basement |
Bedroom 5 |
3.38 m |
3.84 m |
3.38 m x 3.84 m |
|
Basement |
Bedroom |
3.38 m |
3.96 m |
3.38 m x 3.96 m |
|
Basement |
Recreational, Games Room |
7.65 m |
4.97 m |
7.65 m x 4.97 m |
|
Main Level |
Great Room |
5.79 m |
4.57 m |
5.79 m x 4.57 m |
|
Main Level |
Dining Room |
5.12 m |
4.26 m |
5.12 m x 4.26 m |
|
Main Level |
Kitchen |
5.73 m |
3.05 m |
5.73 m x 3.05 m |
|
Main Level |
Eating Area |
5.12 m |
3.65 m |
5.12 m x 3.65 m |
https://www.realtor.ca/real-estate/29180781/110-dorothy-drive-blue-mountains-blue-mountains