105 - 189 Kent Street W Kawartha Lakes, Ontario K9V 5G6
830 sqft
Fully Air Conditioned
Forced Air
$18 Monthly
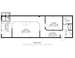
Unit 105 Kent Place - Main floor leasing opportunity of 830 sq ft! Entry seating area two spacious offices/rooms, in suite washroom & kitchenette. Located adjacent to the passenger elevator. Kent Place is a newly renovated premier downtown Lindsay commercial building with an excellent mix of professional offices & services. Fantastic Tenant mix with businesses such as RBC bank, pharmacy, an insurance agency, many law offices & medical offices. Lovely open atrium with skylights with passenger elevator. Plenty of available shared parking on site plus municipal parking nearby. Flexible lease terms are available! (id:47351)
Business
| Business Type | Other |
| Business Sub Type | Professional office(s) |
Property Details
| MLS® Number | X12110394 |
| Property Type | Office |
| Community Name | Lindsay |
| Features | Elevator |
Building
| Age | 51 To 99 Years |
| Cooling Type | Fully Air Conditioned |
| Heating Fuel | Natural Gas |
| Heating Type | Forced Air |
| Size Interior | 830 Sqft |
| Type | Offices |
| Utility Water | Municipal Water |
Land
| Acreage | No |
| Size Depth | 171 Ft |
| Size Frontage | 174 Ft |
| Size Irregular | 174 X 171 Ft |
| Size Total Text | 174 X 171 Ft |
| Zoning Description | Cc (central Commercial) |
https://www.realtor.ca/real-estate/28229612/105-189-kent-street-w-kawartha-lakes-lindsay-lindsay











































