1033 Bruce Road 9 South Bruce Peninsula, Ontario N0H 2T0

3 Bedroom 4 Bathroom 1,500 - 2,000 sqft
Fireplace Heat Pump Acreage

$999,900

Welcome to your own private sanctuary nestled on over 8 acres of beautifully treed land in the heart of the Bruce Peninsula, ideally located just minutes from Wiarton and Lion's Head. This remarkable property offers a blend of comfort, functionality, and natural beauty perfect for those seeking privacy, space, and income potential. The main residence features over 2400 sq ft of living space, 3 spacious bedrooms and 3.5 bathrooms, including a luxurious primary suite. Designed for both everyday living and entertaining, the home boasts a large, open-concept kitchen with ample counter space and cabinetry, ideal for the home chef. A bright, expansive sunroom at the back of the home provides stunning year-round views of the large pond and surrounding landscape. Enjoy the peace and beauty of nature with multiple ponds, a finished walk-out lower level with 4 piece bath and kitchen, and a meandering stream that winds through the trees. A standout feature is the massive 40' x 80' heated shop fully equipped with a hoist, two oversized bay doors (12 ft), and ample space for vehicles, equipment, or your next big project. Adding even more value is a secondary home on the property, currently serving as a rental unit, perfect for generating additional income or hosting extended family and guests. With its ideal location, serene setting, and impressive features, this one-of-a-kind property offers a unique opportunity to enjoy country living at it's best on the Bruce Peninsula.**Highlights:*** 3 Bed / 3.5 Bath Main Home* Walk-out Lower Level* Large Kitchen & Sunroom with Pond Views* 40ft x 80ft Heated Shop w/ Hoist & 2 Bay Doors* Multiple Ponds + Stream* Treed, Private 8-Acre Lot* Secondary Home with Rental Income* Close to Wiarton & Lions Head. Don't miss your chance to own this extraordinary slice of paradise and Open The Door To Better Living! (id:47351)

Property Details

MLS® Number X12749326
Property Type Single Family
Community Name South Bruce Peninsula
Amenities Near By Golf Nearby, Hospital, Marina
Community Features School Bus
Equipment Type Propane Tank, Water Heater, Heat Pump, Water Heater - Tankless
Features Wooded Area
Parking Space Total 21
Rental Equipment Type Propane Tank, Water Heater, Heat Pump, Water Heater - Tankless
Structure Porch, Deck

Building

Bathroom Total 4
Bedrooms Above Ground 3
Bedrooms Total 3
Age 31 To 50 Years
Amenities Fireplace(s)
Appliances Water Treatment, All, Dishwasher, Dryer, Microwave, Hood Fan, Stove, Washer, Window Coverings, Refrigerator
Basement Development Finished
Basement Features Walk Out
Basement Type N/a (finished)
Construction Style Attachment Detached
Exterior Finish Stone, Wood
Fireplace Present Yes
Foundation Type Poured Concrete
Half Bath Total 1
Heating Fuel Electric
Heating Type Heat Pump
Stories Total 2
Size Interior 1,500 - 2,000 Sqft
Type House
Utility Water Artesian Well

Parking

Attached Garage
Garage

Land

Acreage Yes
Land Amenities Golf Nearby, Hospital, Marina
Sewer Septic System
Size Depth 485 Ft
Size Frontage 709 Ft ,8 In
Size Irregular 709.7 X 485 Ft
Size Total Text 709.7 X 485 Ft|5 - 9.99 Acres
Surface Water Lake/pond

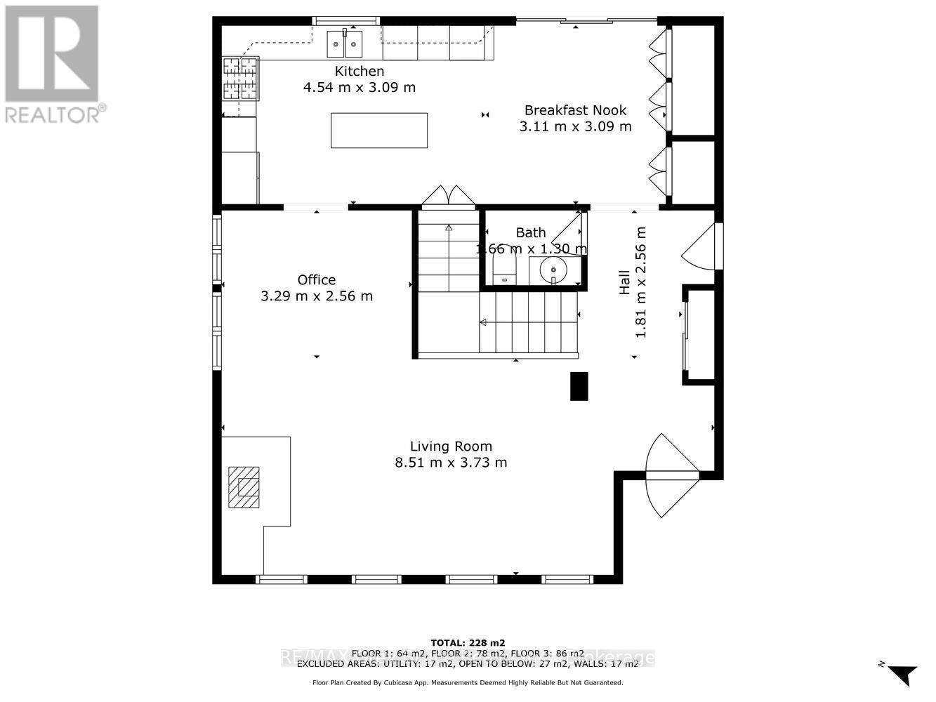
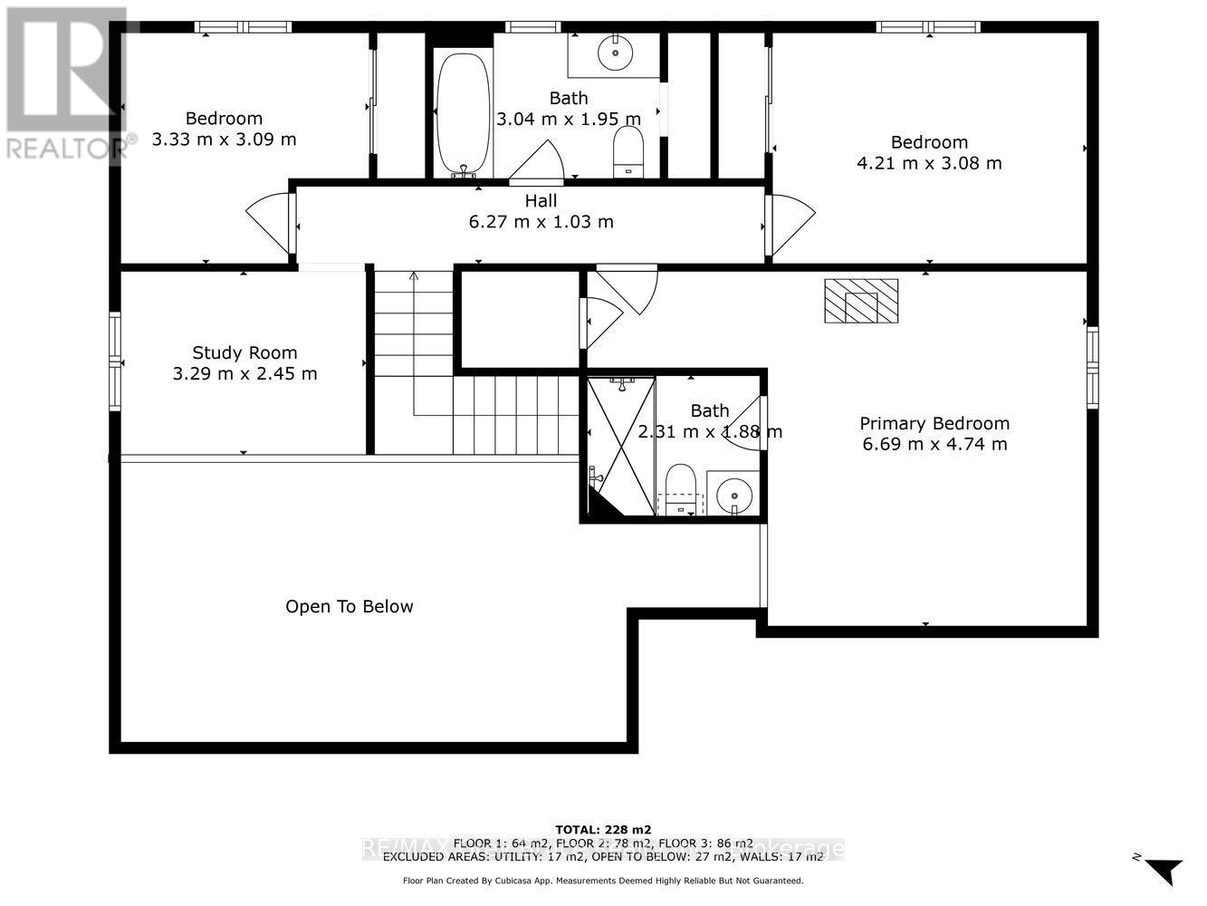
Rooms

Level Type Dimensions
Second Level Primary Bedroom 6.69 m x 4.74 m
Second Level Bedroom 2 3.33 m x 3.09 m
Second Level Bedroom 3 4.21 m x 3.08 m
Second Level Loft 3.29 m x 2.45 m
Lower Level Family Room 8.5 m x 3 m
Lower Level Study 3.95 m x 3.32 m
Lower Level Utility Room 6.38 m x 3.29 m
Main Level Living Room 8.51 m x 3.09 m
Main Level Dining Room 3.29 m x 2.56 m
Main Level Kitchen 4.54 m x 3.09 m

Utilities

Wireless Available

https://www.realtor.ca/real-estate/29313166/1033-bruce-road-9-south-bruce-peninsula-south-bruce-peninsula