Acreage
$11 / ft2
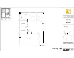
Located in the heart of Downtown Sudbury, Elm Place is a premier, high-traffic destination offering excellent visibility, a diverse tenant mix, and convenient access for both customers and employees. The Elm Place Office Tower offers Class A office space with only a few availabilities remaining ranging from 2,235-4,121 square feet. Elm Place features Sudbury’s largest downtown parking facility, which has undergone significant upgrades. The three-story garage offers 950+ stalls, including ground-level, covered, and upper-level parking. The building has also undergone extensive renovations, boasting luxury finishes throughout its common areas, such as marble flooring, elegant cornice details, accessible spaces and more. On-site amenities enhance both tenant and visitor experiences, including a food court, gym, movie theatre, spa, and the Radisson Hotel. Conveniently accessible from Elm Street and Ste. Anne Road, this prime location benefits from a daily traffic count of 28,847 vehicles and foot traffic of approximately 5,000 people per day, ensuring exceptional exposure and accessibility. This Class A, move-in ready 2,069 sq. ft space features a large boardroom, open space (ideal for cubicles or a collaborative space), kitchenette area and four private offices surrounded by large windows that provide tons of natural light. Secure your space in one of Sudbury’s most dynamic commercial hubs! Contact us today for leasing details. (id:47351)
Business
|
Business Type
|
Other |
|
Business Sub Type
|
Offices |
Property Details
|
MLS® Number
|
2125944 |
|
Property Type
|
Office |
|
Equipment Type
|
Unknown |
|
Rental Equipment Type
|
Unknown |
|
Road Type
|
Paved Road |
Building
|
Amenities
|
Air Conditioning, Exercise Centre, Secured Parking, Shopping Area |
|
Fire Protection
|
Controlled Entry |
|
Type
|
Commercial Mix |
|
Utility Water
|
Municipal Water |
Parking
Land
|
Access Type
|
Highway Nearby, Year-round Access |
|
Acreage
|
Yes |
|
Sewer
|
Municipal Sewage System |
|
Size Total Text
|
3 - 10 Acres |
|
Zoning Description
|
C6 (4) |
https://www.realtor.ca/real-estate/29216555/10-elm-street-unit-604-sudbury