3 Bedroom
2 Bathroom
2 Level
Baseboard Heaters
$299,000
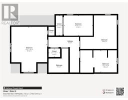
Full of character and ready for its next chapter, this charming 2-storey home offers a solid footprint, original details, and an unbeatable in-town location. With 3 bedrooms, 2 bathrooms, and approximately 1,500 sq ft of living space, this property is ideal for buyers looking to put their own touch on a home with great bones. Many original features remain, including wide baseboards, trim, and hardwood flooring, adding warmth and timeless appeal throughout. The layout is practical and inviting, with room to update and personalize over time. Set on a generous lot with a detached garage and gravel parking, this fully serviced property is just a 1-minute walk to the public school and only 5 minutes to downtown, making daily life easy and walkable. Whether you’re a first-time buyer, renovator, or someone who appreciates the character of an older home, this property offers excellent potential in a location that’s hard to beat. (id:47351)
Property Details
|
MLS® Number
|
2125983 |
|
Property Type
|
Single Family |
|
Equipment Type
|
Water Heater - Electric |
|
Rental Equipment Type
|
Water Heater - Electric |
Building
|
Bathroom Total
|
2 |
|
Bedrooms Total
|
3 |
|
Architectural Style
|
2 Level |
|
Basement Type
|
Partial |
|
Exterior Finish
|
Vinyl Siding |
|
Flooring Type
|
Hardwood |
|
Foundation Type
|
Block |
|
Heating Type
|
Baseboard Heaters |
|
Roof Material
|
Asphalt Shingle |
|
Roof Style
|
Unknown |
|
Stories Total
|
2 |
|
Type
|
House |
|
Utility Water
|
Municipal Water |
Parking
Land
|
Access Type
|
Year-round Access |
|
Acreage
|
No |
|
Fence Type
|
Not Fenced |
|
Sewer
|
Municipal Sewage System |
|
Size Total Text
|
Under 1/2 Acre |
|
Zoning Description
|
Res |
https://www.realtor.ca/real-estate/29258364/1-blake-street-little-current