1 - 525 Milner Avenue Toronto, Ontario M1B 2K4
4,538 sqft
Partially Air Conditioned, Fully Air Conditioned
Forced Air
$1,999,000
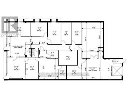
Rare corner unit in well maintained complex with with immediate access to HWY 401. Ample parking. Approximately 87% professional finished offices with 2 washrooms and kitchenette. Floor plan available. 100%a/c. TTC at door. Lots of room for shipping, 53 ft trailer access to be confirmed by Purchaser. Food or retail uses to obtain written consent of the board. Measurements and permitted uses to be confirmed by purchaser. (id:47351)
Property Details
| MLS® Number | E12959240 |
| Property Type | Industrial |
| Community Name | Malvern |
Building
| Cooling Type | Partially Air Conditioned, Fully Air Conditioned |
| Heating Fuel | Natural Gas |
| Heating Type | Forced Air |
| Size Interior | 4,538 Sqft |
| Utility Water | Municipal Water |
Land
| Acreage | No |
| Zoning Description | E 0.6 |
https://www.realtor.ca/real-estate/29560064/1-525-milner-avenue-toronto-malvern-malvern















