157 Toryork Drive Toronto, Ontario M9L 1X9
27,988 sqft
Partially Air Conditioned
Forced Air
Acreage
$11,500,000
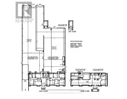
Outstanding opportunity to acquire a 27,988 SF freestanding industrial building on 1.52 acres, including approx. 0.40 acres of approved excess land for expansion. Features 24' clear height, three drive-in doors, one truck-level door, two five-ton cranes, and heavy power. A rare, high-function asset with immediate usability and future upside. (id:47351)
Property Details
| MLS® Number | W12750370 |
| Property Type | Industrial |
| Community Name | Humber Summit |
Building
| Cooling Type | Partially Air Conditioned |
| Heating Fuel | Natural Gas |
| Heating Type | Forced Air |
| Size Interior | 27,988 Sqft |
| Utility Water | Municipal Water |
Land
| Acreage | Yes |
| Size Frontage | 348 Ft ,11 In |
| Size Irregular | 1.52 |
| Size Total | 1.52 Ac |
| Size Total Text | 1.52 Ac |
| Zoning Description | Eh1 |
https://www.realtor.ca/real-estate/29314808/157-toryork-drive-toronto-humber-summit-humber-summit



















